Alumil M 11000 Alutherm Plus
Оконная профильная система M 11000 Alutherm Plus
Бренд Alumil

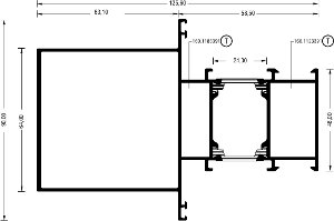
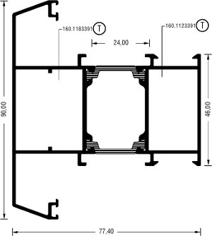
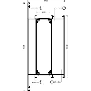
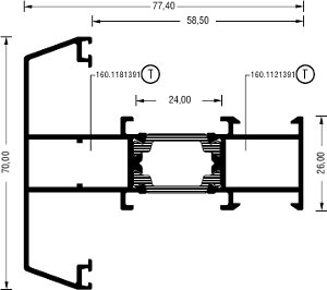
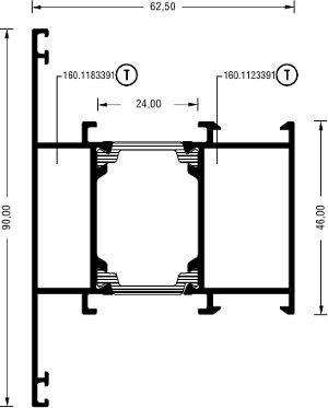
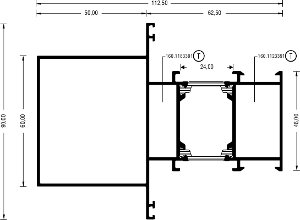
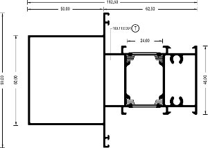
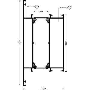
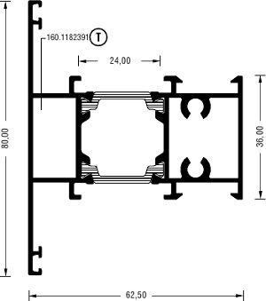
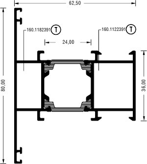
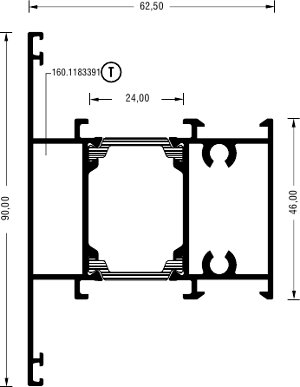
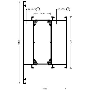
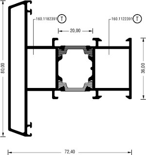
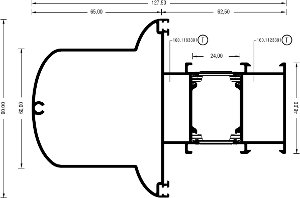
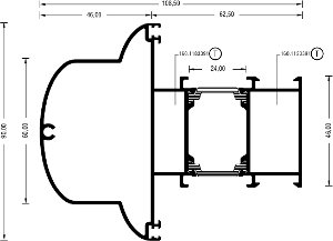
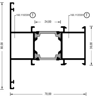
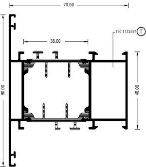
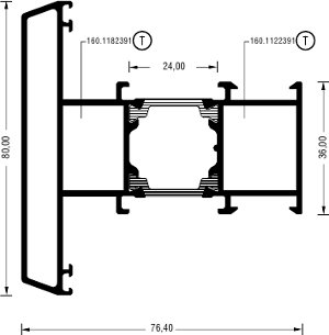
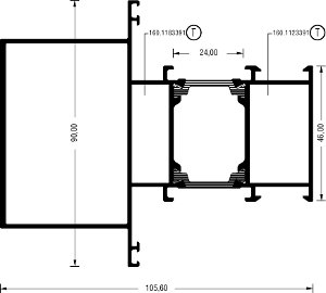
Монтажная ширина рамы | 62, мм | |
Толщина стеклопакета | 57 мм |
Монтажная ширина рамы | 62, мм |
Толщина наружной стенки | 1.4 мм |
Количество камер в раме | 3 |
Количество камер в створке | 3 |
Максимальная толщина стеклопакета | 57 мм |
Материал | алюминий профили |
Поворотная фурнитура для конструкций | да |
Поворотно-наклонная фурнитура для конструкций | да |
Класс звукоизоляции по EN ISO 140-3, 10 077 | 52 |
Документы
Декоративные окна Neoclassic - 1.11MAlumil: Architectural Aluminium System - 7.63M
M 11000 Alutherm Plus (фото) - 635.89K
M 11000 Alutherm Plus (фото 2) - 523.05K
M 11000 Alutherm Plus (фото 3) - 578.47K
M 11000 Alutherm Plus (фото 4) - 663.74K