Premium
Оконная профильная система Premium

Монтажная ширина рамы | 60 мм | |
Толщина стеклопакета | 32 мм | |
Завершение производства системы | 2009 год |
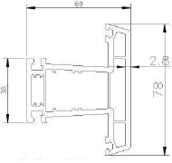
Монтажная ширина рамы | 60 мм |
Толщина наружной стенки | 2.8 мм |
Количество камер в раме | 3 |
Количество камер в створке | 3 |
Максимальная толщина стеклопакета | 32 мм |
Материал | ПВХ профили |
Тип конструкции системы (AD, MD) | AD |
Поворотная фурнитура для конструкций | да |
Поворотно-наклонная фурнитура для конструкций | да |
Поворотная фурнитура для балконных дверей | да |
Поворотно-наклонная фурнитура для балконных дверей | да |
Перекрытие света глухой конструкцией | 64 мм |
Перекрытие света конструкцией со створкой | 116 мм |
Перекрытие света импостом | 78 мм |
Перекрытие света импост + 2 створки | 182 мм |
Завершение производства системы | 2009 год |
Сертификат | да |
Документы
Технический каталог Open Teck - 3.97MТехнический каталог Open Teck: сечения - 6.61M
Технический каталог Open Teck: производство - 3.28M