REHAU Euro-Design 70
Оконная профильная система Euro-Design 70
Бренд REHAU

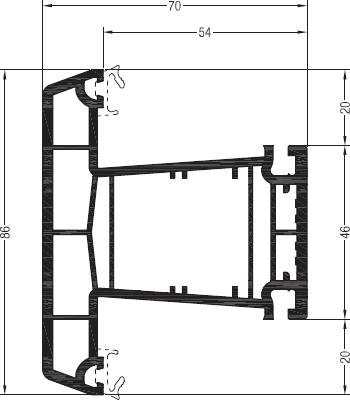
Монтажная ширина рамы | 70 мм | |
Uf профиля | 1,3 Вт/Км² | |
Толщина стеклопакета | 42 мм |
Монтажная ширина рамы | 70 мм |
Uf профильной системы (с армированием, если используется) | 1,3 Вт/Км² |
Толщина наружной стенки | 2.8 мм |
Количество камер в раме | 5 |
Количество камер в створке | 5 |
Максимальная толщина стеклопакета | 42 мм |
Материал | ПВХ профили |
Тип конструкции системы (AD, MD) | AD |
Поворотная фурнитура для конструкций | да |
Поворотно-наклонная фурнитура для конструкций | да |
Поворотная фурнитура для балконных дверей | да |
Поворотно-наклонная фурнитура для балконных дверей | да |
Перекрытие света глухой конструкцией | 64 мм |
Перекрытие света конструкцией со створкой | 116 мм |
Перекрытие света импостом | 78 мм |
Перекрытие света импост + 2 створки | 182 мм |
Поверхность: покраска | да |
Звукоизоляция | от 40 до 44 дБ |
Сертификат | да |
Профили профильной системы
Импосты (перемычки) REHAU Euro-Design 70 Армирующие профили REHAU Euro-Design 70Документы
Сечение профилей Euro-Deisgn 70 - 1.90MОписание системы Euro-Design 70 - 812.62K
Рабочие чертежи Euro-Design 70 - 4.29M
Размеры заготовок Euro-Design 70 - 1.13M
Чертежи узлов Euro-Design 70 - 1.68M